在本教程中,您学会了创建钣金零件和在展开模式工程图中放置钣金标注的基本工作流。此次练习的若干要点包括:
- 在部件环境中工作时,您能够使用部件几何图元来定义钣金零件的主要设计方面。
- 出于对材料厚度或折弯半径的考虑,钣金特征通常是在两者取其一的基础上创建的。
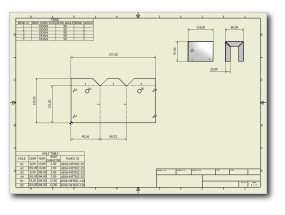
- 钣金冲压 iFeature 简化模型中的简单和复杂的切割(和成形)特征的创建过程。冲压 iFeature 负载的属性可在工程图的冲压参数表中恢复。
- 由特征生成的折弯在展开模式中显示折弯中心线和折弯范围。这些折弯可在包含重要制作属性的工程图中的折弯表中轻松标识。
- 可轻松创建折叠模型的展开模式并且其提供了毗邻特征之间的展开折弯区域的准确表达。这些展开的折弯区域的尺寸是由您从模板开始创建新的钣金模型时所使用的有效钣金规则中所定义的展开规则决定的。
接下来干什么?接下来,通过完成 “钣金第 2 部分” 教程继续探索钣金功能。
上一页
单击此处以返回教程主页