快速入门

  1. 将工作路径设定为 tutorial_files
  2. 打开 \Tutorial Files\Cylinder Clamp 中的 hinge.idw

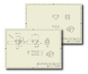
    该文件包含一个简单的两页工程图,您可以在该教程中参考此工程图。该工程图的“图纸:1”包含将在该教程的第一部分中详细介绍的零件的四个视图。“图纸:2”则显示添加剖视图、尺寸和标注后工程图的外观。

  3. 若要查看“图纸:2”,请双击浏览器中的“图纸:2”节点。
注: 虽然您可以为创建的任何工程图添加图纸,但是通常不能添加包含其他图纸上显示的相同视图的图纸。提供的工程图中的第二张图纸只是一个参考本教程中渐进过程的简单方法。

继续学习本教程时,您可以保持此工程图的打开状态。

在以后的若干步骤中,您可以选择模板来开始新的工程图,并向工程图纸中添加前视图、左视图、俯视图和等轴测视图。

上一页 | 下一页