族编辑器

族编辑器是 Revit 中的一种图形编辑模式,使您能够创建并修改可引入到项目中的族。 当开始创建族时,在编辑器中打开要使用的样板。 该样板可以包括多个视图,如平面视图和立面视图。 族编辑器与 Revit 中的项目环境有相同的外观,但提供的工具不同。 工具的可用性取决于要编辑的族的类型。

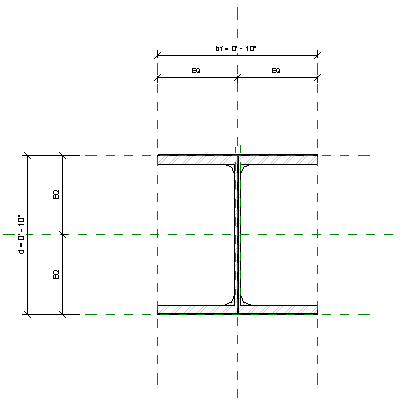
下图显示了族编辑器中的宽法兰列族的平面视图。 绿色的虚线样式的参照平面用于约束族中的几何图形。

使用族编辑器编辑或创建族之前,应先了解一下族。 请参见创建可载入族

要了解如何启动族编辑器,请参见打开族编辑器