
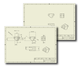
Tento soubor obsahuje jednoduchý výkres na dvou listech, do kterého můžete během výukového programu nahlížet. List:1 výkresu obsahuje čtyři pohledy součásti, kterou během první části tohoto výukového podrobně zpracujete. List:2 představuje vzhled výkresu po doplnění pohledu řezu, kót a poznámky.

Je možné pokračovat ve výukovém programu a výkres ponechat otevřený.
V několika následujících krocích vyberete šablonu, ze které začnete vytvářet nový výkres, a na list výkresu přidáte nárys, levý boční pohled, půdorys a izometrický pohled.