Revit Architecture
Revit Structure
Revit MEPVšechny prvky, které nejsou v aktivní pracovní sadě, se na kreslicí ploše zobrazují šedě. Dočasné prvky, jako jsou dočasné kóty a ovládací prvky, se nezobrazují šedě. Tato možnost nemá žádný vliv na tisk, ale pomáhá zamezit přidávání prvků do nežádoucí pracovní sady.
Vizuální odlišení aktivní pracovní sady
panel Pracovní sady
Alternativně můžete kliknout na kartu Spolupracovat
panel Pracovní sady
(Zobrazení neaktivních pracovních sad šedě).

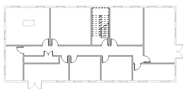
Následující obrázek ukazuje půdorys podlaží projektu, kde pracovní sada Rozvržení interiéru je aktivní a všechny ostatní pracovní sady jsou šedé.


Následující obrázek ukazuje půdorys podlaží projektu, kde pracovní sada Elektrické rozvržení je aktivní a všechny ostatní pracovní sady jsou šedé.
