Editor rodin představuje režim pro grafické úpravy v aplikaci Revit, který umožňuje vytvářet a upravovat rodiny pro začlenění do projektu. Rodina se začne vytvářet tím, že se otevře šablona v editoru. Šablona může obsahovat několik pohledů, například půdorysné nebo bokorysné pohledy. V aplikaci Revit má Editor rodin stejný vzhled jako prostředí projektu, poskytuje však jiné nástroje. Dostupnost nástrojů závisí na typu rodiny, kterou upravujete.
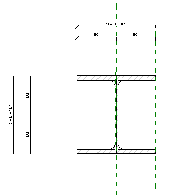
Následující obrázek ukazuje půdorysný pohled na širokou rodiny přírubových sloupů v Editoru rodin. Zelená přerušovaná referenční rovina se používá k zavazbení geometrie v rodině.

Než začnete v Editoru rodin upravovat či vytvářet rodiny, měli byste mít o rodinách určité znalosti. Viz část Vytváření načítatelných rodin.
Informace o tom, jak spustit Editor rodin, najdete v části Otevření Editoru rodin.