Figure 187: Precast-Single Tee Properties
Figure 188: Precast-Single Tee Cross Section
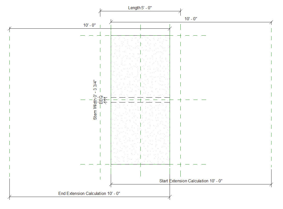
Figure 189: Precast-Single Tee Cross Section 2
Figure 190: Precast-Single Tee