Erstellen einer Erstansicht und einer parallelen Ansicht

  1. Zum Erstellen einer Zeichnung klicken Sie auf Neu.
  2. Klicken Sie im Dialogfeld Neue Datei erstellen auf den Vorlagen-Ordner, wählen Sie ANSI (zoll).idw aus, und klicken Sie auf Erstellen.
  3. Speichern Sie das Zeichnungsdokument unter dem Namen MyAccumulator.idw.
  4. Klicken Sie in der Multifunktionsleiste auf Registerkarte Ansichten platzieren Gruppe Erstellen Basis . Das Dialogfeld Zeichnungsansicht wird angezeigt.
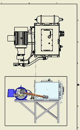
  5. Wählen Sie unter Ausrichtung auf der Registerkarte Komponente den Eintrag Aktuell, um die aktuelle Ausrichtung der Ansicht aus der Baugruppendatei zu übernehmen. Behalten Sie für die anderen Optionen die Standardeinstellungen bei. Beachten Sie Folgendes:
    • Die Baugruppe Accumulator.iam ist unter Datei ausgewählt.
    • Die Ansichtsdarstellung Standard und die Detailgenauigkeit Hauptansicht sind ausgewählt.
    • Der Ansichtsmaßstab ist 0,08:1.
    • Parallele Ansichten sofort nach Erstansichterstellung erstellen ist aktiviert.
  6. Verschieben Sie die Vorschau auf den oberen rechten Quadranten des Zeichnungsblatts. Klicken Sie anschließend, um die Ansicht zu platzieren.
    Anmerkung: Klicken Sie im Dialogfeld Zeichnungsansicht nicht auf OK. Wenn Sie auf OK klicken, wird die Ansicht an einer zufälligen Position eingefügt, und der Befehl wird beendet.
  7. Bewegen Sie den Mauszeiger nach unten, um eine Vorschau der parallelen Ansicht anzuzeigen. Klicken Sie, die parallele Ansicht zu platzieren.
  8. Klicken Sie mit der rechten Maustaste, und wählen Sie Erstellen. In der Zeichnung werden zwei Ansichten erstellt.
  9. Speichern Sie das Zeichnungsdokument.

Zurück | Weiter