
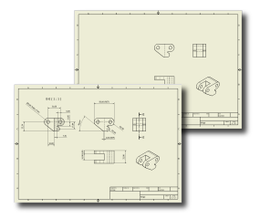
Diese Datei enthält eine einfache, aus zwei Arbeitsblättern bestehende Zeichnung, auf die Sie im Verlauf des Lernprogramms Bezug nehmen können. Blatt:1 der Zeichnung enthält vier Ansichten des Bauteils, mit dem Sie sich im ersten Teil dieses Lernprogramms beschäftigen. Auf Blatt:2 ist dargestellt, wie die Zeichnung nach dem Hinzufügen einer Schnittansicht, von Bemaßungen und einer Anmerkung aussehen würde.

Sie brauchen diese Zeichnung nicht zu schließen, während Sie weiter das Lernprogramm absolvieren.
Mit den nächsten Schritten wählen Sie eine Vorlage aus, um mit der Erstellung einer neuen Zeichnung zu beginnen, und fügen dem Zeichnungsblatt eine Vorderansicht, eine Linksansicht, eine Draufsicht und eine isometrische Ansicht hinzu.