Mithilfe von Zuschneidevorgängen können Sie Zeichnungsansichten mit einer definierten Begrenzung zuschneiden. Ein Zuschneidevorgang wird bei bestehenden Ansichten durchgeführt, mit folgenden Ausnahmen:
In den zugeschnittenen Ansichten können Sie folgende Ansichtsvorgänge ausführen:
Zuschneidevorgänge können bei Ansichten mit kreisförmigen oder rechteckigen Formen oder einer vordefinierten Ansichtsskizze durchgeführt werden.
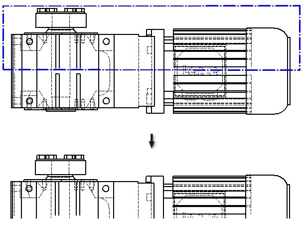
Die folgende Abbildung zeigt das Ergebnis eines Zuschneidevorgangs.

Zugeschnittene Ansichten werden durch Ändern bereits vorhandener Ansichten erstellt.
Zuschneidevorgänge unterstützen sämtliche Zeichnungskommentartypen. Kommentare können an Endpunkten von zugeschnittener Geometrie verankert werden, einschließlich Kanten, die das Ergebnis des Zuschneidevorgangs sind, sofern diese angezeigt werden.
Abmessungen
Das Zuschneiden wirkt sich auf bestehende Blattabmessungen aus. Der Verlust des Kommentarankers führt zu Beschädigungen des Kommentars.
Mittellinien und Mittelpunktmarkierungen
Das Zuschneiden wirkt sich auf bestehende Mittellinien und Mittelpunktmarkierungen aller Typen aus. Der Verlust des Ankers führt zu Beschädigungen des Kommentars.