|
Kategorie
|
Neue Benutzer |
|
Erforderliche Zeit
|
10 Minuten |
|
Verwendete Lernprogrammdateien
|
GSG_13_sheets.rvt
|
|
In dieser Übung erstellen Sie einen Plan und fügen dem Plan mehrere Ansichten hinzu. Sie fügen dem Plan eine Schnittansicht hinzu und sehen, wie die Schnittlinienbeschriftung in der Draufsicht um die Planinformationen erweitert wird.
Ziele
- Erstellen eines Plans mithilfe einer Plankopfvorlage.
- Hinzufügen von Ansichten zum Plan und Ändern der Ansichtsplatzierung und des Titelformats.
Video ansehen
Erstellen eines Plans
- Öffnen Sie das Projekt GSG_13_sheets.rvt.
- Klicken Sie auf Registerkarte Ansicht
Gruppe Planzusammenstellung 
(Plan).
- Wählen Sie im Dialogfeld Neuer Plan unter Planköpfe wählen E1 30 x 42 Horizontal: E1 30 x 42 Horizontal, und klicken Sie auf OK.
- Klicken Sie zur Auswahl des Plans auf den Plankopf und anschließend auf die Plannummer, geben Sie A1 ein, und drücken Sie die Eingabetaste.
Hinzufügen von Ansichten zum Plan
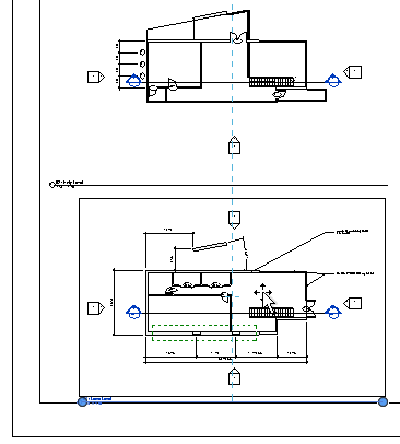
- Klicken Sie im Projektbrowser unter 3D-Ansichten auf den Titel der Ansicht View to Building. Ziehen Sie sie in die obere linke Ecke des Plans, und lassen Sie die Maustaste los.
Zur Vereinfachung der Platzierung wird ein Umriss der Ansicht angezeigt.
- Klicken Sie, um die Ansicht zu platzieren.
- Ziehen Sie auf dieselbe Weise die Ansicht des Grundrisses 02 - Entry Level in den Plan, und platzieren Sie sie mit linker Ausrichtung unter der Ansicht View to Building.
Anmerkung: Zur Vereinfachung der Ausrichtung von Ansichten im Plan werden gestrichelte Linien angezeigt.
- Ziehen Sie auf dieselbe Weise die Ansicht des Grundrisses 01 - Lower Level unter die Ansicht 02 - Entry Level, wobei Sie die Ansicht leicht nach rechts verschieben, bis die Mittelpunkte ausgerichtet sind, und klicken Sie, um die Ansicht zu platzieren.
- Klicken Sie außerhalb des Plans, um die Auswahl der Ansicht aufzuheben.
- Klicken Sie auf den Ansichtstitel für die Ansicht des Grundrisses 01 - Lower Level im Plan, und ziehen Sie ihn nach links, um ihn am Titel für die obige Ansicht auszurichten. Verwenden Sie die gestrichelten Linien zur Erleichterung der Ausrichtung.
- Drücken Sie ESC.
- Wählen Sie die Ansicht des Grundrisses 01 - Lower Level im Plan (nicht nur den Titel), und ziehen Sie den rechten Eckpunkt nach links, um die horizontale Titellinie zu verkürzen.
- Kürzen Sie nach derselben Methode die Linien für die anderen beiden Ansichten.
- Klicken Sie im Projektbrowser unter Schnitte (Gebäudeschnitt) auf den Titel der Ansicht Schnitt 1, und platzieren Sie die Ansicht im Plan.
- Vergrößern Sie die Schnittlinienbeschriftung für die Ansicht des Grundrisses 01 - Lower Level im Plan. Beachten Sie, dass die Schnittlinienbeschriftung aktualisiert wurde, um anzugeben, dass die Ansicht Gebäudeschnitt die vierte im Plan A1 angezeigte Ansicht ist.
Dies ist die letzte Übung im Handbuch Erste Schritte.