Damit Sie die Sichtbarkeit von Bezugselementen im Bildausschnitt steuern können, müssen Sie jedes Bezugselement mit dem Bildausschnitt verknüpfen.
Wählen Sie beispielsweise bei einem Projekt, das zwei Bildausschnitte mit den Bezeichnungen Bildausschnitt 2 und Bildausschnitt 1 umfasst, aus der Dropdown-Liste den Eintrag Bildausschnitt 1.
Der Bezug wird jetzt nur in den Ansichten angezeigt, deren Schnittebene den ausgewählten Bildausschnitt schneidet. Wenn die Schnittebene einer Ansicht außerhalb des Bildausschnitts liegt, wird der dazugehörige Bezug nicht in der Ansicht angezeigt.
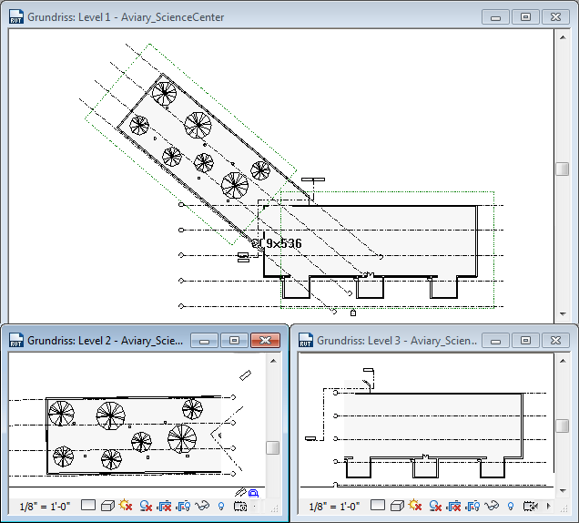
Beispiel: In der folgenden Abbildung zeigt die obere Ansicht Bildausschnitte für das Hauptgebäude und den Vogelhaus-Flügel an. Bildausschnitt 1 wurde auf Rasterlinien für das Hauptgebäude angewendet und Bildausschnitt 2 auf Rasterlinien für den Vogelhaus-Flügel. Folglich zeigen die abhängigen Ansichten (unten) nur die Rasterlinien an, die zu dem jeweiligen Gebäudeteil gehören.

Ändern der Bezüge bei Größenänderung des Bildausschnitts
Sie können die Grenzen der mit den Bildausschnitten verknüpften Bezüge ziehen, indem Sie den Bildausschnitt auswählen und ziehen. Der verknüpfte Bezug wird entsprechend verschoben.

Der durch Ziehen geänderte Bildausschnitt verschiebt die mit ihm verknüpften Ebenenlinien
Wenn Sie die Grenzen eines Ebenenbezugs wieder auf den Standardwert zurücksetzen möchten, wählen Sie die Ebene aus, klicken mit der rechten Maustaste darauf und wählen Grenzen auf Standardwert zurücksetzen. 3D-Modellgrenzen können nicht von der Kante des Bildausschnitts wegbewegt werden, dem sie zugewiesen wurden. 2D-Bezugsgrenzen können dagegen in Ansichten geändert werden. Mit dieser Option werden die Grenzen wieder an ihre Standardposition (in geringem Abstand von der Außenseite des Bildausschnitts) zurückgesetzt.