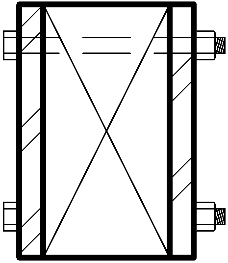
Revit StructureMithilfe des Werkzeugs Verdeckte Linien entfernen heben Sie die Wirkung des Werkzeugs Verdeckte Linien anzeigen auf. Die folgende Abbildung zeigt das Ergebnis, wenn Sie Registerkarte Ansicht
Gruppe Grafik 
(Verdeckte Linien entfernen) und anschließend den 4x6-Ständer und den Bolzen wählen. Die verdeckten Linien werden entfernt, und der 4x6-Stift verdeckt den Bolzen.


