Importieren einer Ansicht aus einem anderen CAD-Programm

Sie können eine Ansicht aus einem anderen CAD-Programm importieren und ein Detail aus dieser Ansicht erstellen.

  1. Klicken Sie auf Registerkarte Ansicht Gruppe Erstellen Zeichenansicht.
  2. Wählen Sie einen Namen und einen passenden Maßstab für die neue Zeichenansicht.
  3. Klicken Sie auf Registerkarte Einfügen Importieren (CAD-Formate importieren).
  4. Wählen Sie das Detail und CAD-Format.
  5. Aktivieren Sie Nur aktuelle Ansicht, wenn Sie sich in einer Detailansicht befinden.
    Anmerkung: Diese Option wird automatisch aktiviert, wenn Sie sich in einer Zeichenansicht befinden.
  6. Klicken Sie auf Öffnen, um das CAD-Detail zu platzieren.
  7. Ziehen Sie diese Ansicht ggf. auf einen Plan.
  8. Referenzieren Sie ggf. diese Ansicht, wenn Sie einen Detailausschnitt oder Schnitt platzieren.

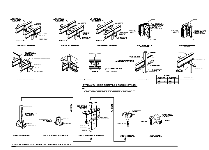
Beispiel für eine importierte Zeichenansicht

Revit Structure

Beispiel für eine importierte Zeichenansicht