
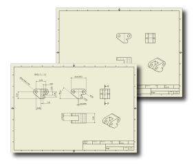
This file contains a simple, two sheet drawing that you can refer to during the tutorial. Sheet:1 of the drawing contains four views of the part you will detail during the first part of this tutorial. Sheet:2 shows how the drawing would look after the addition of a section view, dimensions, and annotation.

You can leave this drawing open as you continue with the tutorial.
In the next several steps, you will select a template to begin a new drawing and add front, left-side, top and isometric views to the drawing sheet.