Crear una vista base y proyectada

  1. Para crear un dibujo, pulse Nuevo.
  2. En el cuadro de diálogo Crear nuevo archivo, pulse la carpeta Templates y seleccione ANSI (in).idw y, a continuación, haga clic en Crear.
  3. Guarde el documento de dibujo como MyAccumulator.idw.
  4. En la cinta de opciones, pulse la ficha Insertar vistas grupo Crear Base . Aparece el cuadro de diálogo Vista base.
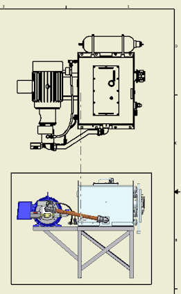
  5. En la ficha Componente, seleccione Actual en Orientación para utilizar la orientación de vista actual del archivo de ensamblaje. Mantenga la configuración por defecto para el resto de las opciones. Observe lo siguiente:
    • El ensamblaje Accumulator.iam está seleccionado en Archivo.
    • Está seleccionada la representación de vista por defecto y el nivel de detalle principal.
    • La escala de la vista se define en 0.08:1.
    • Está seleccionada la opción Crear vistas proyectadas inmediatamente después de la creación de vistas base.
  6. Desplace la vista preliminar al cuadrante superior derecho de la hoja de dibujo. Después, pulse para insertar la vista.
    Nota: No pulse Aceptar en el cuadro de diálogo Vista del dibujo. Si pulsa Aceptar, la vista se coloca en una ubicación aleatoria y finaliza el comando.
  7. Desplace el cursor hacia abajo para mostrar una vista preliminar de la vista proyectada. Después, pulse para insertar la vista proyectada.
  8. Pulse con el botón derecho y seleccione Crear. Se crean dos vistas en el dibujo.
  9. Guarde el documento del dibujo.

Anterior | Siguiente