En este aprendizaje ha utilizado un flujo de trabajo básico para crear una pieza de chapa e insertar anotaciones de chapa en un dibujo de desarrollo. Los puntos clave de este ejercicio son los siguientes:
- Trabajando en el contexto de un ensamblaje, ha usado geometría de ensamblaje para definir aspectos clave del diseño de la pieza de chapa.
- Con frecuencia se crean operaciones de chapa en un lado u otro de una selección teniendo en cuenta el grosor del material o el radio de plegado.
- Las iFeatures de punzonado de chapa facilitan la creación de operaciones de corte (y moldeadas) tanto sencillas como complejas en el modelo. Las iFeatures de punzonado incluyen atribuciones que se pueden recuperar en una tabla de punzonado en los dibujos.
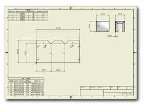
- Los plegados creados mediante operaciones muestran un eje de plegado y extensiones de pliegue en el desarrollo. Los plegados se identifican fácilmente a través de una tabla de plegado en el dibujo que contiene atributos de fabricación importantes.
- Se puede crear fácilmente un desarrollo del modelo de plegado, que proporcionará una representación precisa de las zonas de plegado aplanadas entre operaciones adyacentes. El tamaño de las zonas de plegado aplanadas lo determina la regla de desplegado definida en la regla de chapa activa usada al crear el modelo de chapa a partir de una plantilla.
¿Cuál es el siguiente paso? Completar la segunda parte del aprendizaje de chapa para continuar la exploración de la funcionalidad de chapa.
Anterior
Haga clic aquí para volver a la página de inicio de los aprendizajes.