|
Categoría
|
Usuarios nuevos |
|
Tiempo necesario
|
10 minutos |
|
Archivos de aprendizaje utilizados
|
GSG_13_sheets.rvt
|
|
En este ejercicio, creará un plano y añadirá varias vistas al plano. Añadirá una vista en sección al plano y comprobará que la marca de sección en la vista de plano se actualice e incluya la información del plano.
Objetivos
- Crear un plano utilizando una plantilla de Cuadro de rotulación.
- Añadir vistas al plano y modificar la colocación de la vista y el formato del título.
Ver el vídeo
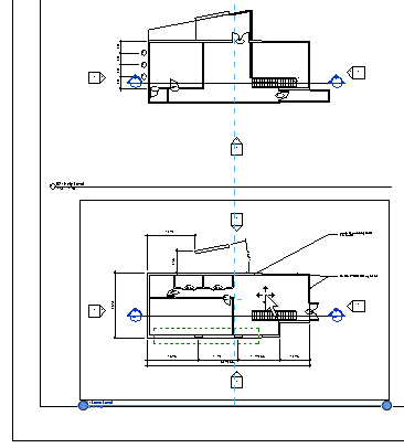
Crear un plano
- Abra el proyecto GSG_13_sheets.rvt.
- Haga clic en la ficha Vista
grupo Composición de plano
(Plano).
- En el cuadro de diálogo Nuevo plano, dentro de Seleccione cuadros de rotulación, elija E1 30 x 42 Horizontal : E1 30 x 42 Horizontal y haga clic en Aceptar.
- Haga clic en el cuadro de rotulación para seleccionar el plano y, a continuación, seleccione el número de plano, escriba A1 y pulse Intro.
Adición de vistas al plano
- En el Navegador de proyectos, dentro de Vistas 3D, haga clic en el título de la vista View to Building, arrástrelo hasta la esquina superior izquierda del plano y suelte el botón del ratón.
Se mostrará un contorno de la vista que hace más fácil la colocación.
- Haga clic para colocar la vista.
- Utilizando el mismo método, arrastre la vista del plano de planta de 02 - Nivel de entrada hasta el plano y colóquela alineada a la izquierda debajo de la vista View to Building.
Nota: se muestran líneas discontinuas para facilitar la alineación de vistas en el plano.
- Utilizando el mismo método, arrastre la vista del plano de planta de 01 - Nivel inferior hasta situarla debajo de la vista 02 - Nivel de entrada. A continuación, desplace la vista ligeramente hacia la derecha hasta que los centros queden alineados y haga clic para colocar la vista.
- Haga clic en un punto fuera del plano para anular la selección de la vista.
- Haga clic en el título de la vista para la vista del plano de planta de 01 - Nivel inferior y arrástrelo hacia la izquierda para alinearlo con el título de la vista situada encima. Utilice las líneas discontinuas para facilitar la alineación.
- Pulse Esc.
- Seleccione la vista de plano de planta de 01 - Nivel inferior en el plano (y no solo en el título), y arrastre el punto final derecho hacia la izquierda para acortar la línea de título horizontal.
- Utilice el mismo método para acortar las líneas de las otras dos vistas.
- En el Navegador de proyectos, en Secciones (Sección de edificio), haga clic en el título de la vista Sección 1 y coloque la vista en el plano.
- En el plano, aplique zoom sobre la marca de sección de la vista de plano de planta 01 - Nivel inferior. Tenga en cuenta que la marca de sección se actualiza para indicar que la vista Sección de edificio es la cuarta vista colocada en el plano A1.
Este es el ejercicio final del Manual Para empezar.