El Editor de familias es un modo de edición gráfica de Revit que permite crear y modificar familias para incluirlas en los proyectos. Para crear una familia, se debe abrir una plantilla para utilizarla en el editor. La plantilla puede incluir varias vistas, por ejemplo de plano o de alzado. El Editor de familias tiene el mismo aspecto y uso en general que el entorno de proyecto de Revit, pero contiene herramientas distintas. La disponibilidad de las herramientas depende del tipo de familia que se esté editando.
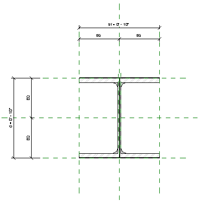
La imagen siguiente muestra una vista de plano de una familia de pilares de ala ancha en el Editor de familias. Los planos de referencia con una línea verde discontinua se utilizan para restringir la geometría de la familia.

Antes de utilizar el Editor de familias para crear o editar una familia, debería informarse sobre las mismas. Consulte Creación de familias cargables.
Para obtener información sobre cómo abrir el Editor de familias, consulte Inicio del Editor de familias.