Créer une vue de base et une projetée

  1. Pour créer un dessin, cliquez sur Nouveau.
  2. Dans la boîte de dialogue Créer un fichier, cliquez sur le dossier Gabarits et sélectionnez ANSI (in).idw, puis cliquez sur Créer.
  3. Enregistrez le document de dessin sous le nom MyAccumulator.idw.
  4. Sur le ruban, cliquez sur l'onglet Placer les vues le groupe de fonctions Créer Base . La boîte de dialogue Vue de dessin s'affiche.
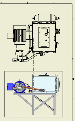
  5. Sélectionnez Active dans la zone Orientation de l'onglet Composant pour utiliser l'orientation de la vue active dans le fichier ensemble. Conservez les paramètres par défaut pour les autres options. Remarque :
    • L'ensemble Accumulator.iam est sélectionné dans Fichier.
    • La représentation de vue par défaut et le niveau de détail principal sont sélectionnés.
    • L'échelle de la vue est définie sur 0.08:1.
    • L'option Créer des vues projetées immédiatement après la création de vue de base est sélectionnée.
  6. Placez l'aperçu dans le quadrant supérieur droit de la feuille de dessin. Cliquez pour placer la vue.
    Remarque : Ne cliquez pas sur OK dans la boîte de dialogue Vue de dessin. Si vous cliquez sur OK, la vue est placée à un emplacement au hasard et la commande se termine.
  7. Déplacez le curseur vers le bas pour afficher un aperçu de la vue projetée. Cliquez pour placer la vue projetée.
  8. Cliquez avec le bouton droit de la souris, puis choisissez Créer . Deux vues sont créées dans le dessin.
  9. Enregistrez le document de dessin.

Précédent | Suivant