
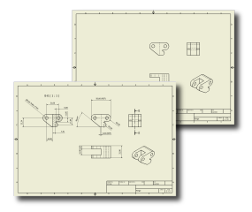
Ce fichier contient un dessin simple, sur deux feuilles auxquelles vous pouvez vous référer au cours du didacticiel. La feuille Sheet:1 du dessin contient quatre vues de la pièce que vous devrez préciser dans la première partie de ce didacticiel. La feuille Sheet:2 montre l'aspect que devrait présenter le dessin après avoir ajouté une vue en coupe, les cotes et l'annotation.

Vous pouvez laisser le dessin ouvert pendant tout le didacticiel.
Dans les prochaines étapes, vous sélectionnerez un gabarit pour commencer un nouveau dessin et ajouter à la feuille les vues avant, latérale gauche et isométrique.