Les opérations de cadrage permettent de délimiter les vues de dessin en fonction d'une limite définie. Une telle opération s'effectue sur des vues existantes, sauf pour les types de vues suivants :
Dans les vues de cadrage, vous pouvez effectuer les opérations suivantes :
Les opérations de cadrage s'effectuent sur une vue avec des formes circulaires ou rectangulaires ou sur une esquisse de vue prédéfinie.
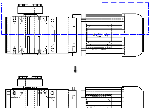
L'image suivante montre un exemple d'opération de cadrage.

Les vues cadrées sont créées en modifiant les vues de dessin suivantes.
Les opérations de cadrage sont disponibles pour tous les types d'annotations de dessin. Les annotations peuvent être ancrées aux extrémités d'une géométrie cadrée, y compris aux arêtes obtenues à partir des arêtes cadrées, si elles apparaissent.
Cotes
Le cadrage influe sur les cotes de la feuille existante. Si les ancrages des annotations sont perdus, ces dernières sont endommagées.
Traits d'axe et marques de centre
Le cadrage a un impact sur les traits d'axes et les marques de centre existants de tous types. Si les ancrages sont perdus, les annotations sont endommagées.