L'Editeur de familles est un mode de modification graphique de Revit qui vous permet de créer et de modifier des familles à inclure dans un projet. Pour créer une famille, vous ouvrez d'abord le gabarit à utiliser dans l'Editeur. Ce gabarit peut inclure plusieurs vues, telles que des plans et des élévations. L'Editeur de familles est conçu selon la même convivialité que l'environnement du projet de Revit, mais présente des outils différents. La disponibilité des outils dépend du type de famille que vous modifiez.
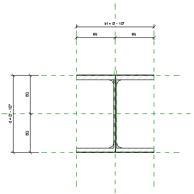
L'image suivante montre une vue en plan d'une famille de poteaux à ailes dans l'Editeur de familles. Les plans de référence en pointillés verts sont utilisés pour contraindre la géométrie dans la famille.

Avant d'utiliser l'Editeur de familles pour modifier ou créer une famille, nous vous recommandons d'en apprendre plus sur les familles. Voir Création de familles chargeables.
Pour apprendre à lancer l'Editeur de familles, voir Ouverture de l'Editeur de familles.