Importation d'une vue à partir d'un autre logiciel de CAO

Il est possible d'importer une vue à partir d'un autre programme de CAO pour créer un détail à partir de cette vue.

  1. Cliquez sur l'onglet Vuele groupe de fonctions Créer (Vue de dessin).
  2. Entrez le nom et l'échelle que vous souhaitez attribuer à la vue de dessin.
  3. Cliquez sur l'onglet Insérerle groupe de fonctions Importer (Importer CAO).
  4. Sélectionnez le détail et le format CAO.
  5. Si la vue actuelle est une vue de détail, sélectionnez Vue actuelle uniquement.
    Remarque : Si la vue actuelle est une vue de dessin, cette option est automatiquement sélectionnée.
  6. Cliquez sur Ouvrir pour placer le détail de CAO.
  7. Si vous le souhaitez, faites glisser la vue sur la feuille.
  8. Vous pouvez faire référence à cette vue pour placer un repère ou une coupe.

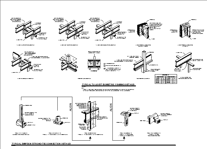
Exemple de vue de dessin importée

Revit Structure

Exemple de vue de dessin importée