Revit Structure
le groupe de fonctions Presse-papiers
la liste déroulante Coller
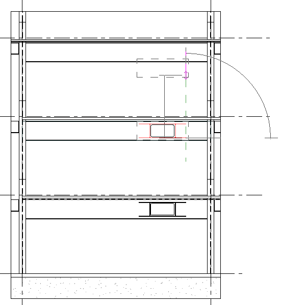
En mode Collage, un aperçu des éléments s'affiche dans la zone de dessin, comme dans l'illustration ci-dessous. Des lignes d'attache et des cotes temporaires s'affichent pour vous aider à positionner les éléments.



Les éléments collés s'affichent dans la zone de dessin. Il sont sélectionnés pour vous permettre de les ajuster au besoin.
Tant que les éléments restent sélectionnés, vous pouvez les modifier selon vos besoins. En fonction du type des éléments collés, vous pouvez utiliser les outils Déplacer, Rotation et Symétrie.
Vous pouvez également utiliser les outils de l'onglet Modifier | <Elément>. Les options disponibles dépendent des éléments collés. Par exemple, pour les composants de construction (tels que des fenêtres), vous pouvez utiliser les outils Choisir l'hôte ou Modifier la famille. Pour d'autres types d'éléments, vous pouvez utiliser les outils Activer les cotes (dans la barre des options) ou Modifier les éléments collés.
le groupe de fonctions Outils
Si vous souhaitez quitter le mode Collage en ignorant les éléments collés, cliquez sur
(Annuler) dans l'onglet Modifier | <Elément>.