Creazione di viste di base e viste proiettate

  1. Per creare un disegno, fare clic su Nuovo.
  2. Nella finestra di dialogo Crea nuovo file, fare clic sulla cartella Modelli e selezionare ANSI (poll).idw, quindi fare clic su Crea.
  3. Salvare il documento di disegno con il nome MyAccumulator.idw.
  4. Nella barra multifunzione fare clic sulla scheda Posiziona viste gruppo Crea Base . Viene visualizzata la finestra di dialogo Vista del disegno.
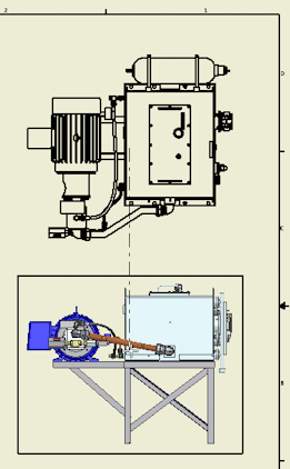
  5. Nella scheda Componente, selezionare Corrente in Orientamento per utilizzare l'orientamento della vista corrente specificato nel file di assiemi. Mantenere le impostazioni di default per altre opzioni. Osservare quanto segue:
    • L'assieme Accumulator.iam è selezionato in File.
    • La rappresentazione vista Default e il livello di dettaglio Principale sono selezionati.
    • La scala della vista è impostata su 0.08:1.
    • L'opzione Crea viste proiettate immediatamente dopo la creazione di una vista di base è selezionata.
  6. Spostare l'anteprima verso il quadrante superiore destro del foglio di disegno. Fare clic per posizionare la vista.
    Nota: Non fare clic su OK nella finestra di dialogo Vista del disegno. Se si fa clic su OK, la vista viene inserita in una posizione casuale e il comando viene terminato.
  7. Spostare il cursore verso il basso per visualizzare un'anteprima della vista proiettata. Fare clic per posizionare la vista proiettata.
  8. Fare clic con il pulsante destro del mouse e scegliere Crea. Nel disegno vengono create due viste.
  9. Salvare il documento di disegno.

Indietro | Avanti