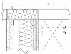
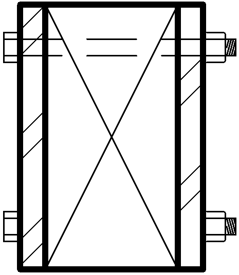
Revit StructureLo strumento Rimuovi linee nascoste annulla gli effetti dello strumento Mostra linee nascoste. Nell'esempio seguente sono illustrati i risultati ottenuti se si sceglie scheda Vista
gruppo Grafica
(Rimuovi linee nascoste), quindi si seleziona il perno 4x6 e il bullone. Le linee nascoste vengono rimosse e il perno 4x6 nasconde interamente il bullone.


