Importazione di viste da un altro programma CAD

È possibile importare una vista da un altro programma di CAD e creare un dettaglio da quella vista.

  1. Fare clic sulla scheda Vistagruppo Crea(Vista di disegno).
  2. Immettere un nome e una scala appropriata per la nuova vista di disegno.
  3. Fare clic sulla scheda Inseriscigruppo Importa (Importa CAD).
  4. Selezionare il dettaglio e il formato CAD.
  5. Selezionare Solo vista corrente, se la vista di dettaglio è quella corrente.
    Nota: La selezione viene eseguita automaticamente se la vista corrente è una vista di disegno.
  6. Fare clic su Apri per posizionare il dettaglio CAD.
  7. Se lo si desidera, trascinare la vista su una tavola.
  8. Se necessario, creare riferimenti alla vista quando si posiziona un dettaglio o una sezione.

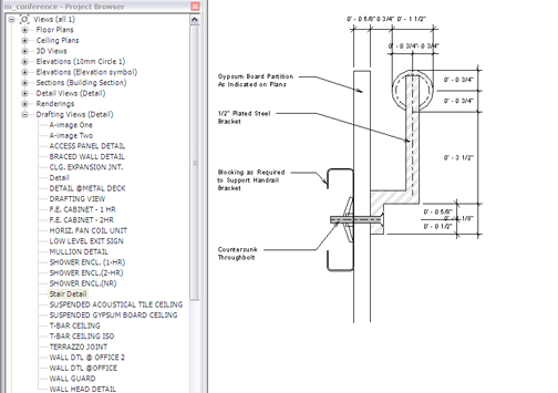
Esempio di vista di disegno importata

Revit Structure

Esempio di vista di disegno importata