Precast-L Shaped Beam

Precast-L Shaped Beam

Figure 184: Precast-L Shaped Beam Properties

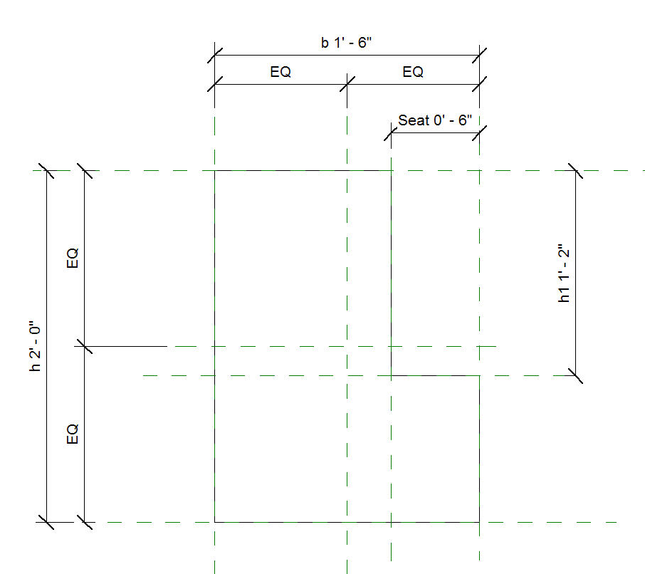
Figure 185: Precast-L Shaped Beam Cross Section

Figure 186: Precast-L Shaped Beam