このチュートリアルでは、シート メタル パーツの作成方法と、シート メタルの注記をフラット パターン図面に配置する方法の基本的なワークフローについて学習しました。この演習のキー ポイントは次のとおりです。
- アセンブリのコンテキストで作業することにより、シート メタル パーツの主要な設計仕様を定義するのに、アセンブリ ジオメトリを使用できました。
- シート メタル フィーチャは、しばしば板厚や曲げ半径を考慮して、選択した一方または反対側のみを作成します。
- シート メタル パンチ iFeature によって、モデルに単純または複雑なカット(および成形)フィーチャを作成するのが容易になります。パンチ iFeature は、図面上のパンチ テーブルで修復可能な属性を保持します。
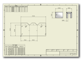
- フィーチャによって作成された曲げは、フラット パターン上に曲げ中心線および曲げ範囲として表示されます。これらの曲げは、重要な製造属性を含む図面上の曲げテーブルで簡単に特定できます。
- 曲げモデルのフラット パターンは容易に作成でき、これにより隣接するフィーチャ間の平坦化された曲げゾーンを正確に表現できます。これらの平坦化された曲げゾーンの寸法は、アクティブなシート メタル規則スタイルで定義された展開ルールによって決定されます。シート メタル規則スタイルは、新規シート メタル モデルをテンプレートから作成するときに使用されます。
次の内容 - 次のステップでは、「シート メタル パーツ 2」チュートリアルを完了することにより、引き続きシート メタルの機能について説明します。
[前へ]
チュートリアルのホーム ページに戻るには、ここをクリックしてください