スタートアップ

  1. 作業パスを tutorial_files に設定します。
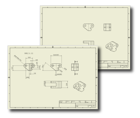
  2. ¥Tutorial Files¥Cylinder Clamp にある hinge.idw を開きます。

    このファイルにはシンプルな 2 つのシート図面が含まれていて、チュートリアルの最中に参照することができます。図面の Sheet:1 には、このチュートリアルの最初のパートで利用するパーツの 4 つのビューが含まれています。Sheet:2 は、断面図、寸法、および注記を追加した後の図面がどのように見えるのかを示します。

  3. Sheet:2 を表示するには、ブラウザで Sheet:2 ノードをダブルクリックします。
注: シートはユーザが作成するどのような図面にも追加できますが、一般的には他のシートに表示されるものと同じビューが含まれているシートを追加することはありません。用意された図面の 2 番目のシートは、このチュートリアルの段階的な進行を参照するための簡単な手段に過ぎません。

この図面を開いたまま、チュートリアルを進めることができます。

次のいくつかのステップでは、テンプレートを選択して新しい図面を開始し、正面図、左側面図、平面図、およびアイソメ ビューを図面シートに追加します。

[前へ] | [次へ]