切り抜き操作は、定義した境界を使って図面ビューをクリップする手段です。切り抜き操作は、次のビュー タイプを除く、既存のビューで実行します。
切り抜かれたビューでは、以下のビューの操作を実行できます。
切り抜き操作は、円形または矩形の形状を含むビューや、定義済みのビュー スケッチで実行することができます。
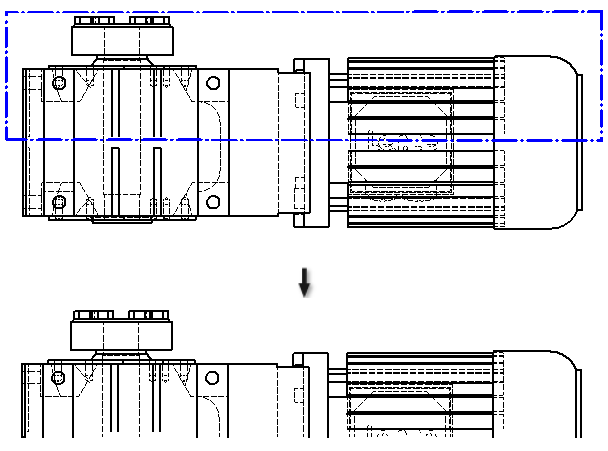
下図に、切り抜き操作の結果を示します。

切り抜いたビューは、以下のタイプの完成した図面ビューを変更して作成できます。
切り抜き操作は、すべてのタイプの図面注記をサポートします。注記が表示される場合は、それらの注記は、切り抜きエッジから生成されるエッジを含む、切り抜いたジオメトリの端点に固定できます。
寸法
切り抜きは既存のシート寸法に影響を及ぼします。注記アンカーが失われると、注記は不完全になります。
中心線と中心マーク
切り抜きは、既存のすべてのタイプの中心線と中心マークに影響を及ぼします。アンカーが失われると、注記は不完全になります。