特定のビューをシートに配置する場合は、次の方法で、ビューの一部分を非表示にし、1 つの領域に焦点を合わせることができます。
- トリミング領域: トリミング領域を使用して建築モデルの特定の領域のビューに焦点を合わせます。詳細は、「トリミング領域」を参照してください。
- マスキング領域: マスキング領域を使用し、無関係のビュー領域(長方形のトリミング領域内)を非表示にします。詳細は、「マスキング領域」を参照してください。
ヒント: ビューの元のバージョンを保持するには、最初に複製ビューを作成します。([プロジェクト ブラウザ]でビュー名を右クリックして、[ビューを複製]

[複製]をクリックします。)複製ビューを開いて、必要に応じてトリミング領域とマスキング領域を適用します。次に、複製ビューをシートに配置します。
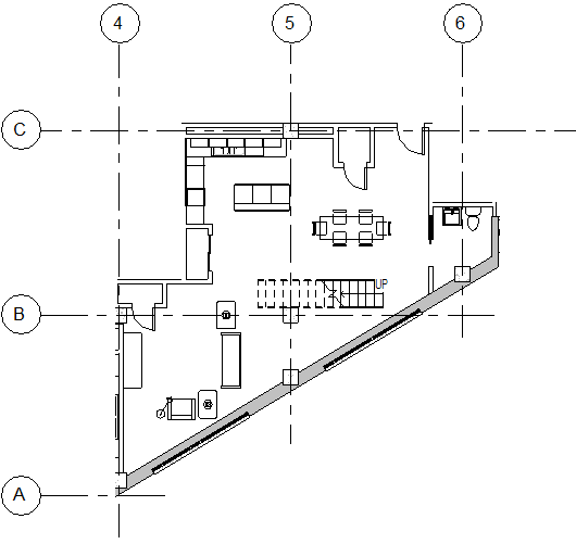
例
次の平面図では、マスキング領域によって、アパートメント ユニットの右上コーナーと右下コーナーが隠され、無関係なモデル ジオメトリが非表示になっています。