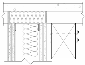
隠線を非表示にする

[隠線を非表示]ツールには、[隠線を表示]コマンドとは反対の効果があります。次の例では、[表示]タブ [グラフィックス]パネル (隠線を非表示)を選択し、次に 4 x 6 スタッドとボルトを選択した結果を示します。この手順により、隠線が非表示になり、4x6 スタッドによってボルトが完全に隠されます。

Revit Structure