ファミリ エディタは Revit のグラフィカルな編集モードです。ファミリ エディタを使用して、プロジェクトに含めるファミリを作成、修正できます。ファミリの作成を開始するには、まずエディタで使用するテンプレートを開きます。一部のテンプレートには平面図ビューや立面図ビューなど複数のビューが含まれています。ファミリ エディタは、見た目と操作性については Revit のプロジェクト環境と同じですが、異なるツールを備えています。使用可能なツールは、編集するファミリのタイプによって異なります。
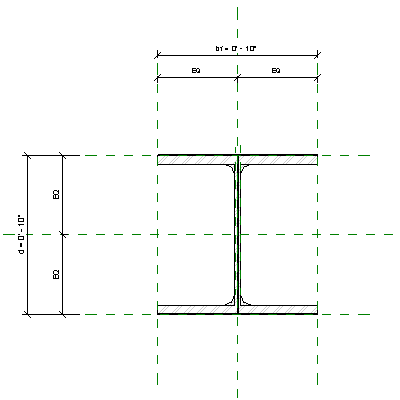
次に示すイメージは、ファミリ エディタのワイド フランジ柱ファミリの平面図ビューです。緑の破線のリファレンス面は、ファミリでジオメトリを拘束するために使用されています。

ファミリ エディタを使用してファミリを作成または編集する前に、ファミリについて学ぶ必要があります。「ロード可能なファミリを作成する」を参照してください。
ファミリ エディタの開始方法については、「ファミリ エディタを開く」を参照してください。