別の CAD プログラムからビューを読み込む

別の CAD プログラムからビューを読み込み、そのビューから詳細を作成することができます。

  1. [表示]タブ [作成]パネル (製図ビュー)をクリックします。
  2. 新しい製図ビューの名前と適切な尺度を入力します。
  3. [挿入]タブ [読み込み]パネル (CAD を読み込む)をクリックします。
  4. 詳細と CAD 形式を選択します。
  5. 詳細ビューの場合は、[現在のビューのみ]オプションを選択します。
    注: 製図ビューの場合は、自動的に選択されます。
  6. [開く]をクリックして、CAD の詳細を配置します。
  7. 必要に応じて、このビューをシートにドラッグ アンド ドロップします。
  8. 必要に応じて、吹き出しまたは断面図を配置するときに、このビューを参照します。

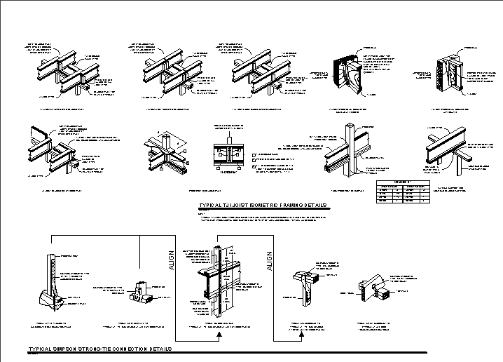
読み込んだ製図ビューの例

Revit Structure

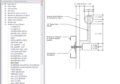
読み込んだ製図ビューの例