기준 뷰 및 투영된 뷰 작성

  1. 도면을 작성하려면 새로 만들기를 클릭합니다.
  2. 새 파일 작성 대화상자에서 템플릿 폴더를 클릭하고 ANSI (in).idw를 선택한 다음 작성을 클릭합니다.
  3. 도면 문서를 MyAccumulator.idw로 저장합니다.
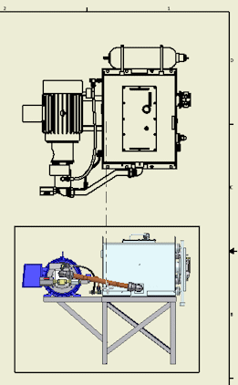
  4. 리본에서 뷰 배치 탭 작성 패널 기준을 클릭합니다 . 도면 뷰 대화상자가 나타납니다.
  5. 구성요소 탭의 방향에서 현재를 선택하여 조립품 파일의 현재 뷰 방향을 사용합니다. 다른 옵션의 기본 설정을 유지합니다. 알림:
    • 파일에서 Accumulator.iam 조립품이 선택되었습니다.
    • 기본 뷰 표현 및 마스터 세부 수준이 선택되었습니다.
    • 뷰 축척은 0.08:1로 설정되었습니다.
    • 기준 뷰를 작성한 후 즉시 투영된 뷰 작성 옵션이 선택되었습니다.
  6. 미리보기를 도면 시트의 오른쪽 위 사분면으로 이동합니다. 그런 다음 뷰를 클릭하여 배치합니다.
    주: 도면 뷰 대화상자에서 확인을 클릭하지 마십시오. 확인을 클릭하면 뷰가 임의 위치에 배치되고 명령이 종료됩니다.
  7. 커서를 아래로 이동하여 투영된 뷰의 미리보기를 표시합니다. 그런 다음 투영된 뷰를 클릭하여 배치합니다.
  8. 마우스 오른쪽 버튼을 클릭하고 작성을 선택합니다. 도면에 뷰가 두 개 작성됩니다.
  9. 도면 문서를 저장합니다.

이전 | 다음