
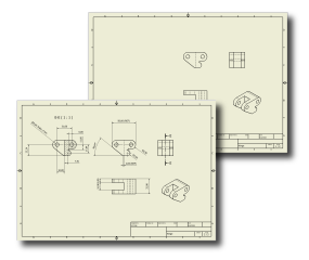
이 파일에는 튜토리얼을 진행하는 동안 참조할 수 있는 두 개의 간단한 시트 도면이 있습니다. 도면의 Sheet:1에는 이 튜토리얼의 첫 번째 부분에서 세부적으로 설계할 부품의 뷰가 네 개 포함되어 있습니다. Sheet:2에서는 단면도, 치수 및 주석을 추가하면 도면이 어떻게 표시되는지 보여줍니다.

이 도면을 열어 둔 채로 튜토리얼을 진행할 수 있습니다.
다음 몇 단계에서는 템플릿을 선택하여 새 도면을 시작하고 정면도, 좌측면도, 평면도 및 등각투영 뷰를 도면 시트에 추가합니다.