오리기 작업은 정의된 경계로 도면 뷰를 자릅니다. 오리기 작업은 다음 뷰 유형을 제외한 기존 뷰에 수행됩니다.
오린 뷰에서 다음 뷰 작업을 수행할 수 있습니다.
오리기 작업은 원형 또는 직사각형 쉐이프가 있는 뷰 또는 미리 정의한 뷰 스케치에 수행할 수 있습니다.
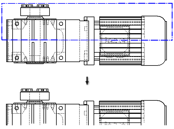
다음 이미지는 오리기 작업 결과를 나타냅니다.

오린 뷰는 설정된 도면 뷰를 변경하여 작성됩니다.
오리기 작업은 모든 유형의 도면 주석을 지원합니다. 주석은 표시된 경우 오리기 모서리에서 생성된 모서리를 포함하여 오린 형상의 끝점에 앵커시킬 수 있습니다.
치수
오리기는 기존 시트 치수에 영향을 줍니다. 주석 앵커가 손실되면 주석에 문제가 생깁니다.
중심선 및 중심 표식
오리기는 모든 유형의 기존 중심선과 중심 표식에 영향을 줍니다. 앵커가 손실되면 주석에 문제가 생깁니다.