은선 제거

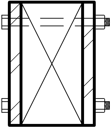
은선 제거 도구는 은선 보이기 도구의 효과를 되돌립니다. 다음 예에서는 뷰 탭그래픽 패널(은선 제거)를 선택한 후 4x6 스터드와 볼트를 선택한 결과를 보여줍니다. 은선은 제거되고 4x6 스터드가 볼트를 완전히 가립니다.

예제

Revit Structure

예제