패밀리 편집기는 프로젝트에 포함시킬 패밀리를 작성하고 수정하는 데 사용되는 Revit의 그래픽 편집 모드입니다. 패밀리 작성을 시작할 때 편집기에서 사용할 템플릿을 엽니다. 템플릿은 평면 및 입면과 같은 다중 뷰를 포함할 수 있습니다. 패밀리 편집기는 Revit의 프로젝트 환경과 동일한 외관과 느낌을 가지고 있지만 기능은 다른 도구입니다. 사용 가능한 도구는 편집 중인 패밀리 유형에 따라 다릅니다.
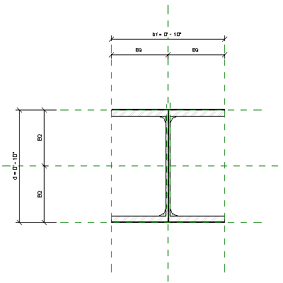
다음 이미지에서는 패밀리 편집기에서 와이드 플랜지 기둥 패밀리의 평면뷰를 보여줍니다. 녹색 파선의 참조 평면을 사용하여 패밀리의 형상을 구속합니다.

패밀리 편집기를 사용하여 패밀리를 편집하거나 작성하기 전에 패밀리에 대해 알고 있어야 합니다. 로드할 수 있는 패밀리 작성을 참고하십시오.
패밀리 편집기를 시작하는 방법에 대해 살펴보려면 패밀리 편집기 열기를 참고하십시오.