Utwórz rzut i rzut bazowy

  1. Aby utworzyć rysunek, kliknij Nowy.
  2. W oknie dialogowym Utwórz nowy plik kliknij folder Szablony i wybierz plik ANSI (in).idw, a następnie kliknij przycisk Utwórz.
  3. Zapisz dokument rysunku jako MyAccumulator.idw.
  4. Na wstążce kliknij kartę Wstaw widoki panel Tworzenie Baza . Wyświetlone zostanie okno dialogowe Widok rysunku.
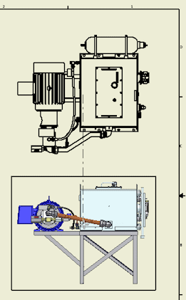
  5. Wybierz opcję Bieżący w pozycji Orientacja na karcie Komponent, aby użyć bieżącej orientacji widoku z pliku zespołu. Zachowaj domyślne ustawienia pozostałych opcji. Uwagi:
    • Zespół Accumulator.iam wybiera się w pliku.
    • Wybrano reprezentację widoku domyślnego oraz główny poziom szczegółu.
    • Ustawiona skala widoku to 0.08:1.
    • Opcja Utwórz rzutowane widoki bezzwłocznie po utworzeniu widoku podstawowego jest zaznaczona.
  6. Przesuń podgląd do prawego górnego kwadrantu arkusza rysunkowego. Następnie kliknij, aby umieścić widok.
    Uwaga: Nie klikaj przycisku OK w oknie dialogowym Widok rysunku. Jeśli kliknie się przycisk OK, rzut zostanie umieszczony w dowolnym położeniu, a polecenie zakończone.
  7. Przesuń kursor w dół, aby wyświetlić podgląd rzutu. Następnie kliknij, aby umieścić rzut.
  8. Kliknij prawym przyciskiem myszy i wybierz opcję Utwórz. W rysunku zostaną utworzone dwa widoki.
  9. Zapisz dokument rysunku.

Wstecz | Dalej