
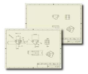
Ten plik zawiera prosty rysunek na dwóch arkuszach, do którego można się odwoływać podczas wykonywania ćwiczenia. Arkusz:1 rysunku zawiera cztery rzuty części, która zostanie uszczegółowiona podczas wykonywania pierwszej części tego ćwiczenia. Arkusz:2 przedstawia wygląd rysunku po dodaniu rzutu przekroju, wymiarów i opisów.

Można pozostawić ten rysunek otwarty w czasie wykonywania dalszej części ćwiczenia.
W kilku kolejnych etapach wybrany zostanie szablon w celu rozpoczęcia nowego rysunku, a następnie do arkusza rysunkowego dodany zostanie rzut z przodu, z lewej strony i z góry oraz rzut izometryczny.