Operacje kadrowania umożliwiają przycinanie widoków rysunkowych ze zdefiniowaną obwiednią. Operacja kadrowania jest wykonywana na istniejących widokach, z wyjątkiem poniższych typów widoku:
W przypadku widoków skadrowanych można wykonać następujące operacje:
Operacje kadrowania można wykonać na widoku o kształcie kołowym lub prostokątnym lub na uprzednio zdefiniowanymi szkicu widoku.
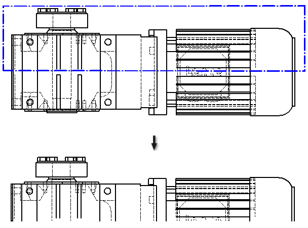
Na poniższym rysunku przedstawiono wynik operacji kadrowania.

Widoki skadrowane są tworzone przez zmianę ustalonych widoków rysunkowych.
Operacje kadrowania obsługują wszystkie typy opisów rysunków. Opisy mogą być zamocowane do punktów końcowych kadrowanej geometrii z uwzględnieniem krawędzi powstałych z krawędzi kadrowania, jeśli są wyświetlane.
Wymiary
Kadrowanie ma wpływ na istniejące wymiary arkusza. Gdy kotwice zostaną utracone, opisy stają się uszkodzone.
Linie środkowe i znaczniki środka
Kadrowanie ma wpływ na linie środkowe i znaczniki środka wszystkich typów. Gdy kotwice opisów zostaną utracone, opisy stają się uszkodzone.