W programie Revit tworzone są automatyczne wymiary w celu łatwiejszego sterowania założeniami projektowymi. Te wymiary automatyczne nie są domyślnie wyświetlone.
Aby je włączyć, wybierz opcję Automatyczne wymiary szkicu na karcie Kategorie opisów w oknie dialogowym Nadpisania widoczności/grafiki. Można wtedy zmienić te wymiary lub utworzyć własne wymiary za pomocą narzędzia Wymiar. Można także blokować wymiary, aby utrzymywać stałą odległość. Jest to przydatne, jeśli planowane jest posiadanie kilku wielkości rodziny i zachodzi potrzeba utrzymania pewnych wymiarów jako stałych, kiedy wielkość rodziny ulega zmianie.
Gdy automatyczne wymiary szkicu ograniczają geometrię do płaszczyzn odniesienia, w projekcie można zaobserwować nieoczekiwane zachowanie. Automatyczne wymiarowanie szkicu w programie Revit to sposób na rozwiązanie kwestii powiększania lub pomniejszania geometrii w oparciu o zmiany wartości parametru rodziny.
Po dodaniu prostokątnego okna do drzwi pożarowych, które mają wymiar szerokości z etykietą, nie zwymiarowano okna.

Zdecydowano się na zmianę szerokości drzwi, ale szerokość okna ma pozostać taka sama. Należy oczekiwać, że położenie się nie zmieni; jednakże, kiedy zwiększa się szerokość drzwi za pomocą narzędzia Typy rodzin coś się dzieje.

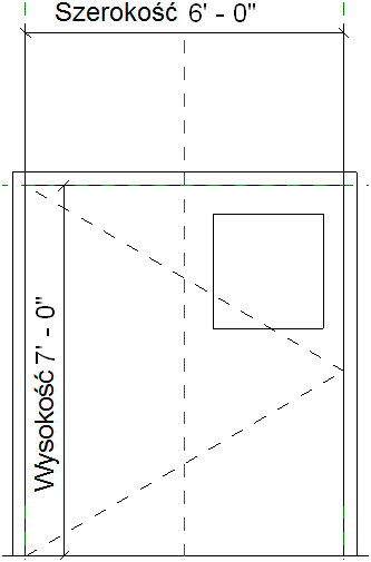
W tym przykładzie okno jest związane z osią drzwi i prawą stroną panelu drzwi. Oba te elementy są reprezentowane przez płaszczyzny odniesienia. Położenie okna pozostaje stałe w stosunku do tych płaszczyzn odniesienia.
Aby zobaczyć automatyczne wymiary rysunku, edytuj rysunek okna i włącz widoczność wymiarów. Można zobaczyć, jak pionowe linie rysunku okna są wymiarowane do środkowej i prawej płaszczyzny odniesienia.

Legenda obrazu:
Aby uzyskać pożądane wyniki, dodaj wymiary zablokowane. Przykładowo można dodać zablokowany wymiar do szerokości okna i zablokowany wymiar od okna do prawej płaszczyzny odniesienia.