Edytor rodzin jest trybem edycji graficznej w programie Revit, który umożliwia tworzenie i modyfikowanie rodzin celem umieszczenia ich w projekcie. Na początku tworzenia rodziny otwiera się szablon do użycia w edytorze. Szablon może zawierać wiele widoków, takich jak rzuty i elewacje. Edytor rodzin ma taki sam wygląd jak środowisko projektu w programie Revit, ale zawiera inne narzędzia. Dostępność narzędzi zależy od typu edytowanej rodziny.
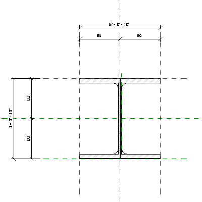
Poniższy rysunek przedstawia rzut rodziny kolumn z szerokim kołnierzem w Edytorze rodzin. Kreskowane na zielono płaszczyzny odniesienia są używane do wiązania geometrii rodziny.

Przed przystąpieniem do edytowania lub tworzenia rodziny za pomocą Edytora rodzin należy zapoznać się z informacjami na temat rodzin. Zobacz temat Tworzenie rodzin wczytywalnych.
Aby dowiedzieć się, jak uruchomić Edytor rodzin, zobacz temat Otwieranie Edytora rodzin.