
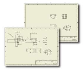
Este arquivo contém um desenho simples de duas folhas, que você pode consultar durante o tutorial. A Folha:1 do desenho contém quatro vistas da peça para a qual você vai criar detalhes durante a primeira parte do tutorial. A Folha:2 mostra o aspecto do desenho após adicionadas uma vista de seção, cotas e anotações.

Você pode deixar o desenho aberto enquanto avança no tutorial.
Nos passos seguintes, você selecionará um modelo para iniciar um desenho novo e adicionará uma vista frontal, superior, esquerda e isométrica à chapa do desenho.