
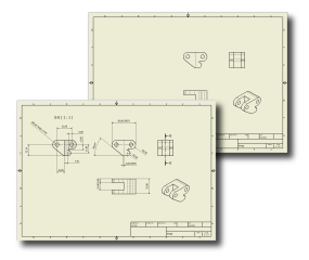
Этот файл содержит простой чертеж на двух листах, который можно использовать при изучении данного пособия. Лист:1 чертежа содержит четыре вида детали, детализация которой будет выполняться в первой части этого учебного пособия. Лист:2 показывает возможный вид чертежа после добавления вида сечения, размеров и аннотации.

Этот чертеж можно оставить открытым в течение всего времени работы с учебным пособием.
После выполнения нескольких действий, описанных ниже, будет выбран шаблон для нового чертежа, и на лист чертежа будут добавлены вид спереди, вид слева, вид сверху и изометрические виды.