Операции обрезки обеспечивают средства обрезки видов чертежа с определенной границей. Операция обрезки выполняется на существующих видах за исключением следующих типов видов:
На обрезанных видах можно выполнять следующие операции с видом:
Операции обрезки могут выполняться на виде с круговыми и прямоугольными фигурами или на предварительно определенном эскизе вида.
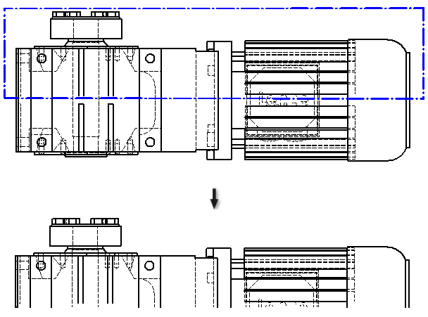
На следующем рисунке показан результат операции обрезки.

Обрезанные виды создаются путем изменения существующих видов чертежа.
Операции обрезки поддерживают все типы пояснений на чертеже. Аннотации могут привязываться к конечным точкам обрезанных геометрических объектов, включая ребра, образуемые краями обрезки, если они отображаются.
Размеры
Обрезка влияет на существующие размеры листа. Когда якоря аннотаций утрачиваются, аннотации становятся неполноценными.
Осевые линии и маркеры центра
Обрезка влияет на существующие осевые линии и маркеры центра всех типов. Когда якоря утрачиваются, аннотации становятся неполноценными.