Редактор семейств Revit позволяет в графическом режиме создавать и редактировать семейства, используемые в проектах. Создание семейства начинается с выбора шаблона. Шаблоны семейств могут содержать несколько видов, таких как планы и фасады. По внешнему виду и принципу работы редактор семейств аналогичен среде работы с проектами Revit, однако содержит другие инструменты. Набор доступных инструментов определяется типом редактируемого семейства.
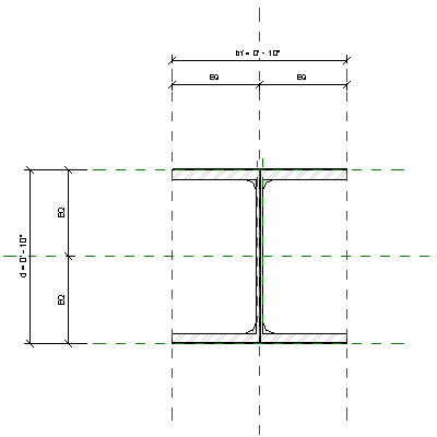
На следующем рисунке показан вид в плане семейства "Широкая полка-Колонна" в Редакторе семейств. Зеленые штриховые опорные плоскости используются для определения геометрии в семействе.

Прежде чем приступать к созданию или редактированию семейств с помощью редактора семейств, полезно получить понятие о том, что представляют собой семейства. См. раздел Создание загружаемых семейств.
Сведения о запуске редактора семейств приведены в разделе Открытие редактора семейств.